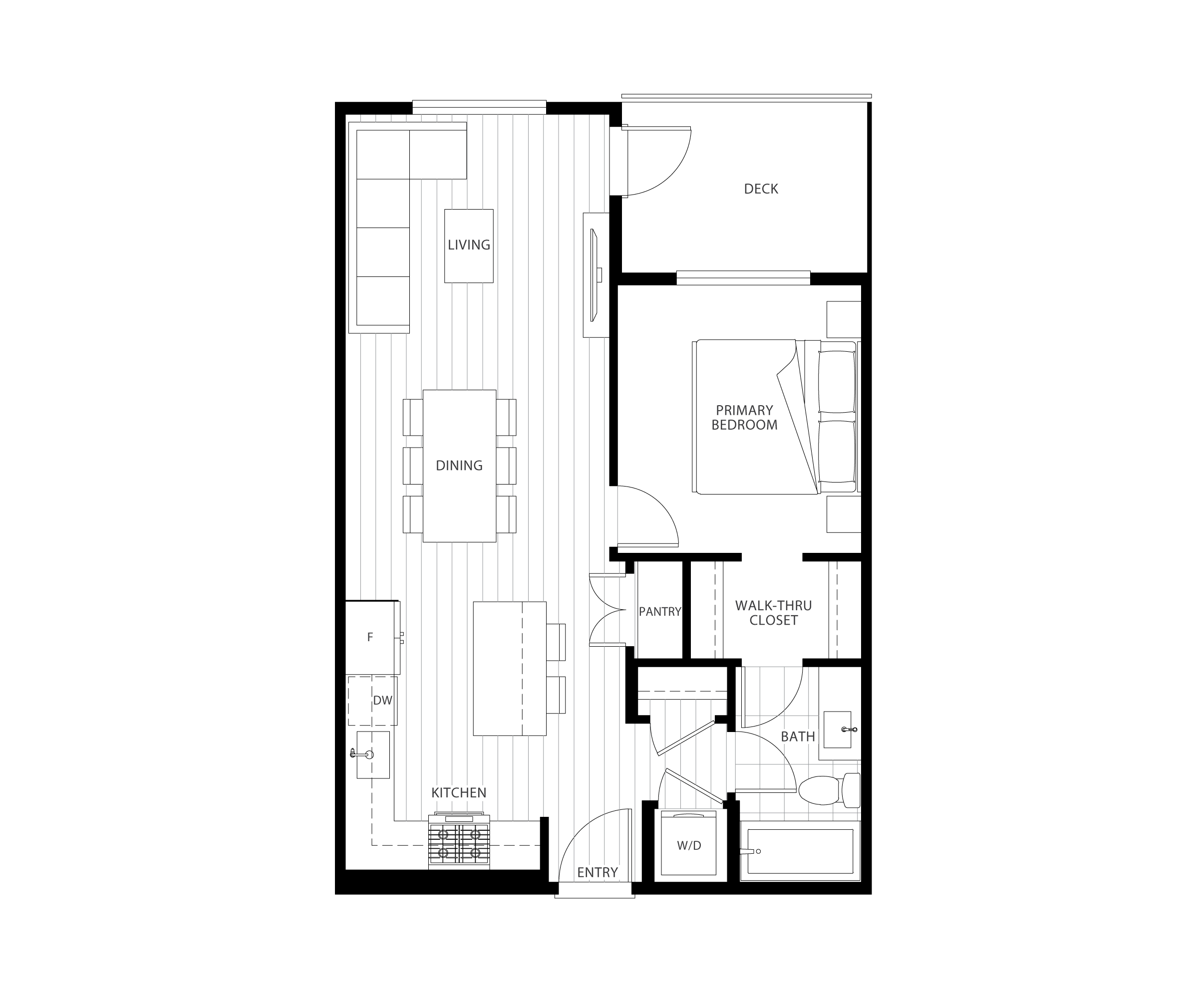
A PLAN

1 Bedroom + 1 Bathroom

643 SQ FT

Level 1

Level 2

Level 3-5

Level 6

Infinity Properties Ltd. reserves the right to make modifications and changes to the building design, elevations, dimensions, specifications, features and prices without prior notification. Decks, patios, stairs and windows may vary based on site conditions. All dimensions are approximate and based on architectural measurements. Reverse and/or mirror plans occur throughout the development. E & O.E.

Thoughtful extras and premium touches at every turn